部屋と料金8C(最大収容人数80名/面積135㎡)

部屋の概要

2面スクリーン、高解像度のプロジェクターを採用した、セミナーや製品発表会などにおすすめの空間です。遊び心のある空間設計で、活発な意見交換が必要なイベントにも適しています。ラウンジの利用も可能ですのでゲストや参加者のおもてなしの質も高まります。

最大収容人数 80名
面積 135㎡
天井 2.65m
料金
4時間(8:00~22:00) 170,000円
9:00~17:00 230,000円
1時間延長(8:00~22:00) 30,000円
  • ご利用料金はすべて税別です。
  • 4時間未満のご利用でも、4時間料金が適用されます。
  • 仮予約期間は、仮予約の受付日から1週間です。なお仮予約のキャンセルには、キャンセル料金は発生しません。
  • 音響設備完全無料
  • Wi-Fi完備
  • 椅子・デスク類完全無料

空室状況・ご内覧のご相談はお気軽に

部屋の位置情報と価格

部屋の位置情報の図
会場 面積 収容人数(名) ご利用料金
階数 部屋名 スクール ロの字 パーティー
(立食)
4時間
(8:00~22:00)
9:00~17:00 1時間延長
(8:00~22:00)
2名掛け 3名掛け 2名掛け 3名掛け 2名掛け 3名掛け 推奨人数 最大人数
8階 8A 23 - - 10(※1) - - - - 28,000 40,000 6,000
8B 22 - - 10(固定) - - - - 28,000 40,000 6,000
8C 135 - - 80(※1) - - 50 70 170,000 230,000 30,000
8A+8B+8C+
LOUNGE North
270 - - 80(※1,2) - - 120 150 226,000 310,000 42,000
8D 187 80 120 72 108 44 66 70 90 210,000 300,000 45,000
8E 112 42 63 36 54 32 48 40 50 120,000 180,000 30,000
8F 290 136 204 108 162 64 96 120 150 330,000 480,000 75,000
Guest Room 8 - - 4 6 - - - - 10,000 14,000 2,000
8D/8E/8F/GR
LOUNGE South
143
(※3)
●8D/8E/8F/Guest Roomの収容人数に準じます(※4) 50(※5) 70(※5) 670,000 974,000 152,000
(全て税別料金 / 単位:円)
  • [ Guest Roomのみのご利用はできません。]
  • 18A、8C、8A+8B+8C+LOUNGE Northの机はW900×D900サイズです(4名掛け)。
  • 28A、8Cは可動壁を開放し、LOUNGE Northとの一体利用が可能です(8Bは固定壁)。
  • 3LOUNGE Southの面積です。
  • 48D / 8E / 8Fは固定壁のためLOUNGE Southとの一体利用はできません。
  • 5LOUNGE Southで懇親会を行った場合の収容人数です。
  • 622:00~翌8:00までのご利用はお問合せください。

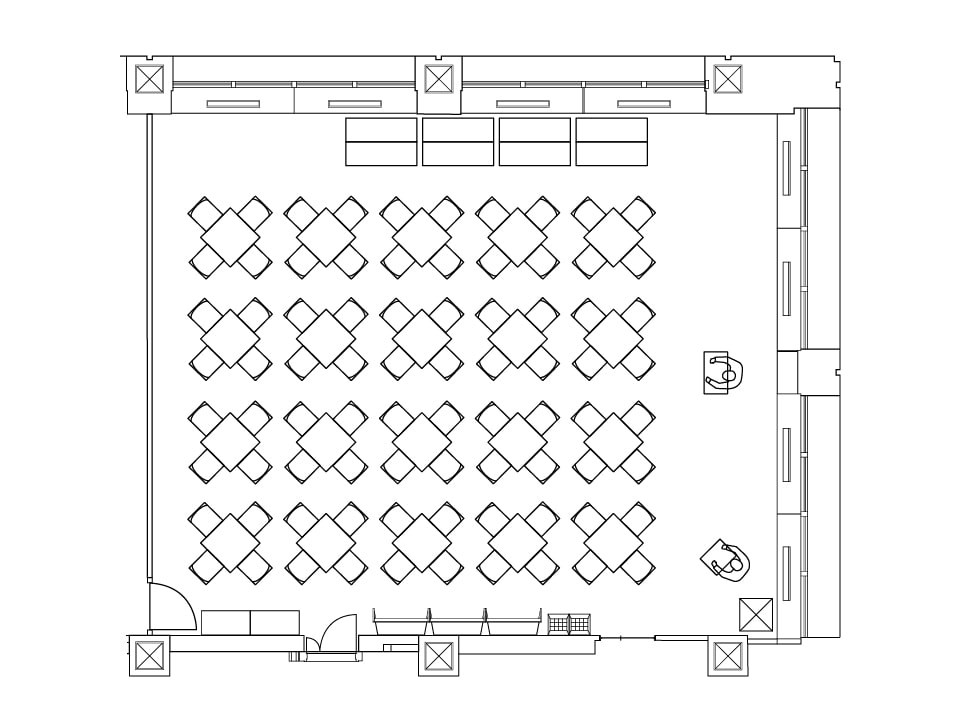
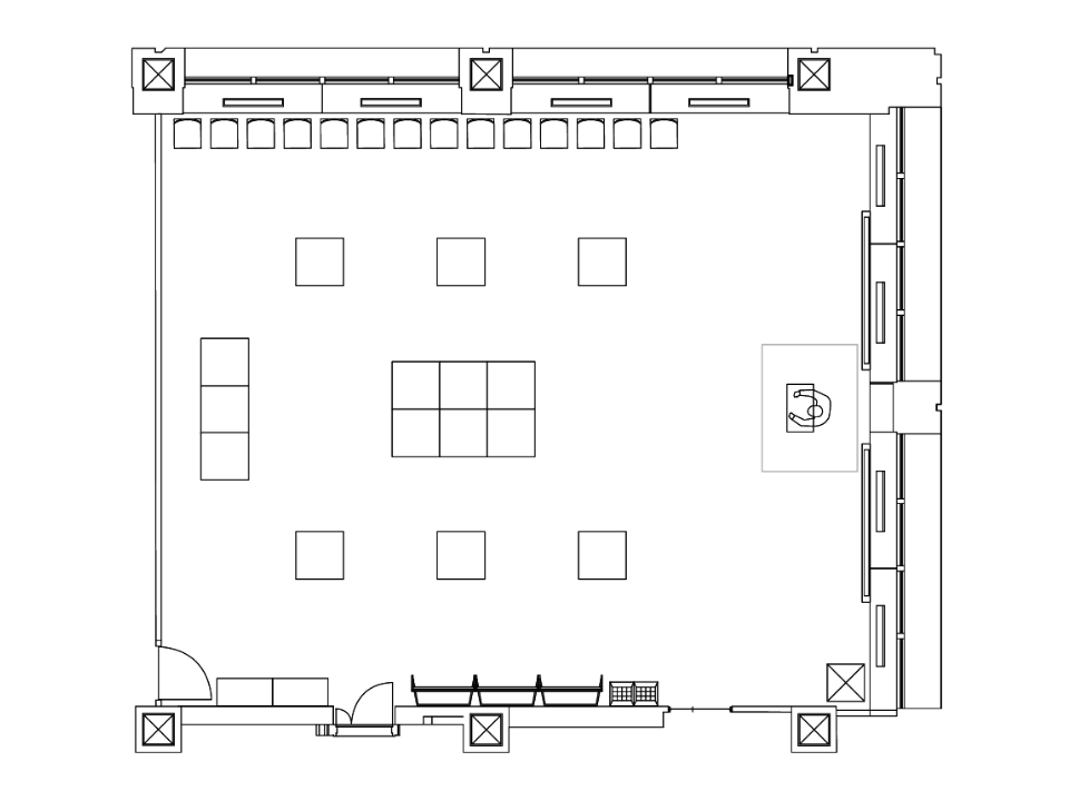
レイアウト例

パーティー形式(推奨50名/最大70名)

島形式(80名)

付帯設備

無料備品

備品名
カテゴリ
メーカー
品番
個数(総数)
備考
赤外線ワイヤレスマイクハンド型
音響
audio-technica
ATIR-T880
5
-
赤外線ワイヤレスマイクピン型
音響
audio-technica
ATIR-T850
1
-
有線マイク
音響
SHURE
SM-58SE
4
-
マイクスタンド卓上型
音響
audio-technica
AT8652
2
-
マイクスタンド床上型
音響
audio-technica
ATIR8653S
2
-
CDプレーヤー
音響
TASCAM
CD-500B
1
-
天吊スクリーン(120インチ)
映像
KIC
KMR-WX120AWS
2
-
BD/DVDプレーヤー
映像
SONY
BDP-S1500
1
-
椅子
備品
-
-
80
-
テーブル
備品
-
-
20
W900×D900×H720
フレキシブル司会台
備品
-
-
1
W900×D900×H720
ホワイトボード(W1890-D600-H1800)
備品
オカムラ
1
本体カラー:ホワイト フレームカラー:ブラック
プロジェクタ―台(W700-D600-H700)
備品
オカムラ
1
本体カラー:ブラック 天板カラー:ネオウッドライト
ステージ(W2400-D1800-H200)
備品
オカムラ
1
特注
演台(W900-D500-H1000) 
備品
オカムラ
4303AK-MK17
1
本体カラー:ネオウッドライト 天板カラー:ネオウッドライト
司会台(W600-D500-H1000)
備品
オカムラ
4303AL-MK17
1
本体カラー:ネオウッドライト 天板カラー:ネオウッドライト
傘立て(W450-D450-H700)
備品
オカムラ
L981EA-ZC97
2
収納本数24本 本体カラー:ブラック
ゴミ箱
備品
オカムラ
2
本体カラー:ホワイト 天板カラー:ラスティックパイン
コートハンガー(W1200-D570-H1750、20名用)
備品
オカムラ
L981BC-ZC97
2
20名用
コートハンガー(W300-H1900)
備品
-
-
-
-

有料備品

備品名
カテゴリ
メーカー
品番
料金/1日
個数(総数)
備考
8000lm天吊プロジェクター
映像
PT-MZ770J
¥40,000
2
2台料金(8Eを除く)
3400lm短焦点プロジェクター(床置/移動式)
映像
EPSON
EB-535W
¥40,000
2
自立式スクリーン
映像
¥3,000
2
追加ホワイトボード(W950)
備品
オカムラ
93A1BA-H106
¥2,000
30
パーテーションとしても使用可能
レーザーポインター(プレゼンター機能付)
備品
キヤノン
PR11-GC
¥2,000
2
グリーンレーザー

利用例

外資IT企業の会社説明会

洗練されたデザイン空間となっている為、企業のブランドのイメージアップにつながり、会社説明会や面接、内定式などの催事をバックアップいたします。

イベント種別 会社説明会
ご利用人数 50名〜80名
使用レイアウト 島形式

パーティー&ネットワーキング

8A、8Cのスライディングウォールを開放することで同一会場での懇親会が可能です。調光式ダウンライトの照明演出と日比谷公園を一望できるロケーションが、より雰囲気を引き立てます。

イベント種別 懇親会
ご利用人数 120名〜150名
使用レイアウト 立食形式

よくあるご質問

会場申込の手続きは大変ですか?
お申込書一枚のみのご記入でお申込いただけます(メールもしくはFAXにて対応可能です)。
利用できる時間は何時から何時までですか?
原則8:00~22:00の営業となっております。上記以外のお時間ご希望の場合はご相談ください。
無料備品はどのようなものがありますか?
演台/司会台/ステージ/ホワイトボード/ハンガーラック/ゴミ箱など充実した無料備品をご用意しております。
ドリンク提供はどのような種類がありますか?
ペットボトルのお水、お茶のご提供、またホットコーヒーはポットでのご提供となります。受付時間の朝、セミナー休憩時などお時間の指定も可能です。
本番中のトラブルはどうすればいいですか?
同フロアのオフィスにスタッフが常駐しておりますので、会場内の内線電話でご相談ください。
会場は何分前に入れますか?
ご予約時間の15分前からの開錠となります。なお、ご契約時間は準備撤去を含めたお時間でご予約いただいております。
ラウンジは利用できますか?
会場をご利用の方どなたでもお使いいただけます。共有エリアになりますので、他のお客様のご迷惑にならないようにご配慮をお願いいたします。
ラウンジのドリンクサーバーは利用可能ですか?
LOUNGE SOUTHに設置のドリンクサーバーは、会場をご利用の方どなたでも無料でご利用いただけます。ただし、1日のご提供分が決まっておりますのでなくなり次第終了となります。
ケータリングはどのような種類がありますか?
複数の業者よりお選びいただくことが可能です。また、懇親会場については、セミナー終了後に転換をして、同会場にて実施いただくことも可能です。イベントの進行具合によっては懇親会の開始を早めたり遅らせたりなど、可能な限り柔軟に対応いたします。
会場案内板はどこにありますか?
駅直結の地下通路、1階のエレベーターホール、8階フロアに至るまで各所に案内板を設置しておりますので初めての方でも迷わずお越しいただけます。

お問い合わせ

空室確認や施設・各部屋に関するご不明点・ご相談はお電話でお気軽にお問い合わせください。

資料ダウンロード

この部屋の情報を集約した資料を無料でダウンロードできます。

より詳しくイベントのことを知りたい方は